The Altan is a thoughtfully designed semi-detached home offering modern, flexible living. The ground floor features an open-plan kitchen and dining area with French doors to the rear garden, perfect for entertaining or family life. A separate living room provides a cosy space to relax, alongside a convenient WC and hallway storage. Upstairs are three well-proportioned bedrooms, a family bathroom, and additional storage.
All images, videos, virtual tours, photographs, dimensions, and layouts are for illustrative purposes only and are indicative of the house type. For further information, please refer to the image disclaimer within the footer of the Gleeson Homes website or consult with the development’s Sales Executive.
Key features
- Semi-detached
- Front and rear gardens
- High-quality specifications included as standard from well-known brands
- Personalise your home with our optional extras (subject to build stage)
- 10-Year Warranty (first 2 years with Gleeson and a further 8 years with NHBC)
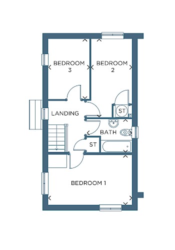
Floor Plans

Ground Floor
| Room | Metres | Feet & Inches |
|---|---|---|
| Kitchen / Dining | 4.59 x 3.54 | 15'1" x 11'7" |
| Living Room | 4.59 x 4.35 | 15'1" x 14'3" |
| WC | 2.06 x 1.04 | 6'9" x 3'5" |

First Floor
| Room | Metres | Feet & Inches |
|---|---|---|
| Bedroom 1 | 2.74 x 4.59 | 9’0" x 15’1” |
| Bedroom 2 | 4.31 x 2.15 | 14’2” x 7’1” |
| Bedroom 3 | 3.25 x 2.34 | 10’8” x 7’8” |
| Bathroom | 2.50 x 1.84 | 8'2" x 6'0" |
Gross internal area: 83.76m² / 901.6ft²
1 Altan home available at 1 development

Lyons Edge – County Durham, DH6 2UU
Plot 61
HOME OF THE WEEK 5% is worth over £9,390
How much could you spend on a new home?
Please select a Development to find out how much you could spend on a new home with our clever mortgage calculator.
Let us know what you are interested in so that we can keep in touch.
Please be as specific as possible to ensure your enquiry can be answered accurately.
* Fields are mandatory
Enquire Now